| Autor |
Nachricht |
M
Site Admin

Geschlecht: 
Anmeldungsdatum: 26.12.2002
Beiträge: 6724
Wohnort: Heidelberg

|
Verfasst am:
Mo Mai 24, 2004 8:42 pm NIRVANA3 Standbox |
  |
ja leider sind mir alle Daten verloren gegeangen und ehrlich gesagt hab ich lkeine Lust nur für eine Zeichnung mehrere Std. Programm einrichten Handbuch schmökern zu praktizieren.
Evtl kann das hier mal ein anderer machen , ich jedenfalls habe dafür keine Zeit.
Fakten sind bei N1 Gehäsue alle angegeben.
BMT Chassisöffnung ist 147mm, also muss der obere Treiber genau bei 100mm abstand sein Zentrum haben.
der HT hat ca 52mm Aussenabmessung und sollte zwischen den treibern so angeodnet sein, dass er 1cm Abstand hat.
Die Aussenmasse min 100cm hoch, 20cm breit und 30cm tief (min22mm Holzstärke)
Ein Trennbrett um das Gehäuse auf die Hlfte ZU reduzieren muss genau in die Mitte der Höhe angebracht sein.
Wenn als Fullrange gewünscht (also die Box muss Bass machen)
ein 100mm Bassreflexrohr mit ca 15cm Tiefe auf der Front oder Rückseite unterhalb des unteren Basses anordnen.
Kann das mal jemand in ein CAD Programm eingeben ?
und dann hier reinstellen.
Ansonsten gabs ja jemand der schon die Standbox gemacht hat...
wie gesagt ich kann zur zeit nicht.
Achja ruft in Zukunft für sowas den Günter an, dafür ist der zuständig!
06227-359856
Zuletzt bearbeitet von M am Di Mai 25, 2004 1:02 am, insgesamt einmal bearbeitet
|
|
   |
 |
Krabbenkoenig
Stammgast

Geschlecht: 
Alter: 42
Anmeldungsdatum: 18.07.2003
Beiträge: 267
Wohnort: Bonn

|
Verfasst am:
Mo Mai 24, 2004 10:59 pm (Kein Titel) |
  |
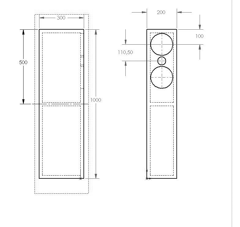
So in der Richtung in Ordnung?
|
|
   |
 |
M
Site Admin

Geschlecht: 
Anmeldungsdatum: 26.12.2002
Beiträge: 6724
Wohnort: Heidelberg

|
Verfasst am:
Di Mai 25, 2004 1:01 am (Kein Titel) |
  |
danke
u saved my day!
einige mögliche Verbesserungen:
Das innentrennbret schräg einbauen ca 45°, damit die senkrechte Resonanz entfällt. Die vordere Kante direkt unterhalb des unteren treiberes stabil mit der Front verleimen!
auf der Rückwand in höhe des HT ein Versteifungsbrettchen ca 5 cm tief verleimen.
Weiteres Tuning, nachdem der HT (Neodym, der nur ca 15mm tief ist)
montiert ist, könnte man eine 19mm Holzplatte von hinten auf die Front leimen, und das Kabel durchziehen, indem man ein kleine Loch bohrt.
Zuletzt bearbeitet von M am Fr Jun 04, 2004 10:37 am, insgesamt einmal bearbeitet
|
|
   |
 |
Burkhard
junior member
Anmeldungsdatum: 13.01.2004
Beiträge: 25
Wohnort: Lünen
|
Verfasst am:
Do Jun 03, 2004 10:21 am (Kein Titel) |
  |
@Manfred
Meines Erachtens müßte das Maß auf der Zeichnung zwischen dem Mittelpunkt des HT's und dem Mittelpunkt des TMT's 125 mm betragen anstatt 110,5 mm.
Ist das so korrekt?
Da ich mir die N3 nicht als Standbox bauen möchte, müsste dann ja ein Aussenmaß von genau H 45 * B 20 * T 33 genau richtig sein, oder??
Dabei sind dann genau 0,1 L weniger Volumen als bei Dir. Das sollte ja nicht dramatisch sein.
Gruß Burkhard
|
|
  |
 |
Krabbenkoenig
Stammgast

Geschlecht: 
Alter: 42
Anmeldungsdatum: 18.07.2003
Beiträge: 267
Wohnort: Bonn

|
Verfasst am:
Do Jun 03, 2004 10:56 am (Kein Titel) |
  |
Ah, ok hast recht, hatte vergessen, dass der TMT 178mm Aussenabmessung hat.
Muss ich bei Gelegenheit ausbessern.
|
|
   |
 |
M
Site Admin

Geschlecht: 
Anmeldungsdatum: 26.12.2002
Beiträge: 6724
Wohnort: Heidelberg

|
Verfasst am:
Fr Jun 04, 2004 10:31 am (Kein Titel) |
  |
Also bitte zum letzten Mal:
Bei hochwertigen Treibern änderen +-20% Volumenänderungen so gut wie nix. Prinzipiell ist ein zu kleines Gehäuse problematischer als ein zu grosses (theoretisch!).
Praktisch machen stehende Wellen dann aber wieder mehr (+neue) Probleme !!!! Siehe alle Säulenkonstruktionen.
Ihr überwbewertet das total.
Wennd die treiber und die weiche stimmen variiert der Kalng durchs Gehäuse nur minimal und wären überhaupt nur im AB Vergleich durch Messungen verifizierbar.
Die Andreas N3 Standbox entstand auch nur per Zufall...das Gehäuse stand seit jahren ungenutzt rum und er war zu faul, ein neues zu bauen
|
|
   |
 |
Bergsteiger
Stammgast

Anmeldungsdatum: 08.03.2004
Beiträge: 341
Wohnort: Vaihingen
|
Verfasst am:
Mo Jul 05, 2004 11:31 pm (Kein Titel) |
  |
Hallo Manfred,
ich baue die N3 Standbox mit den 2 großen Doppelsubs, alles geschlossen.
In dem Zusammenhang stelle ich 2 Fragen:
1.
Ist das N3 Standgehäuse von Andreas auch in der Mitte, d. h. bei 50 cm Höhe abgetrennt ist, nachdem das Gehäuse ja fertig herumgestanden ist. Könnte die Box auch ohne dieses Trennbrett, d. h. nach unten offen, gebaut werden, oder ist das Volumen dann zu groß ?
2.
Ist es sinnvoll auf Höhe des Hochtöners, also bei 75 cm Höhe des Gehäuse mit einem Trennbrett zu teilen, damit beide MT´s ein eigenes Gehäuse haben ? Dies wäre ja möglich, da der Höchtöner mit 15 mm Tiefe ja komlett in der Front verschwindet und im Gehäuseinnern nicht hervorschaut.
Was ist jeweils die bessere Variante ?
Oder besser strikt an die Vorgaben halten ?
Bitte schnelle Antwort, da noch diese Woche mein Holz beim Schreiner zugesägt wird !
|
|
  |
 |
|
|
[ Page generation time: 0.0516s (PHP: 65% - SQL: 35%) | SQL queries: 13 | GZIP enabled | Debug on ]